Mieszkanie na sprzedaż Tychy, P

3 pokoje
73.00 m²
9 575,34 zł/m2
parter
DMN-MS-356
Oblicz ratę kredytu

699 000 zł

Mieszkanie na sprzedaż
Bez prowizji

Szczegóły oferty

Symbol oferty DMN-MS-356
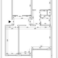
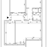
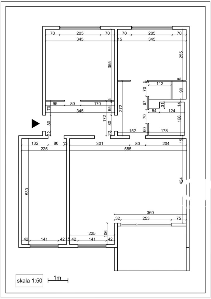
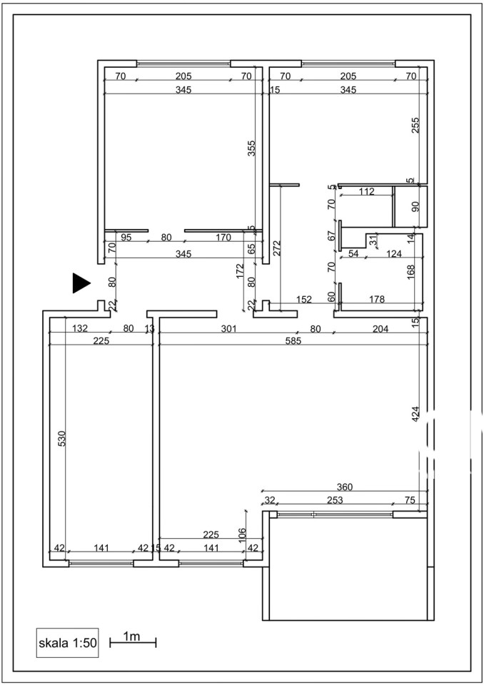
Powierzchnia 73,00 m²
Powierzchnia balkonów/tarasów 10,00 m²
Liczba pokoi 3
Rodzaj budynku blok
Technologia budowlana płyta
Standard
Opłaty w czynszu woda, CO, fundusz remontowy
Piętro parter
Liczba pięter w budynku 4
Garaż brak
Stan lokalu do wprowadzenia
Mies. czynsz admin. 1 500 PLN
Okna PCV
Instalacje wymienione
Balkon duży
Liczba balkonów 1
Rok budowy 1979
Widok na podwórko
Gaz brak
Woda tak - miejska
Dojazd asfalt
Ogrzewanie C.O. WĘGLOWE,C.O. Z SIECI MIEJSKIEJ
Usytuowanie jednostronne
piwnica tak
ANNA FARUGA

ANNA FARUGA

Pośrednik
Nr licencji: 24017

Napisz wiadomość 59 Ofert

Opis nieruchomości

WYJĄTKOWA OKAZJA!  3-pokojowe mieszkanie o powierzchni 73 mkw z dużym balkonem na parterze oraz z możliwością korzystania na wyłączność z bezpośrednio przylegającego ogródka.

TERMOMODERNIZACJA BLOKU wraz z robotami towarzyszącymi zostanie wykonana w 2026 roku.
 


OPIS NIERUCHOMOŚCI: 
Przede wszystkim przestronne komfortowe i funkcjonalne mieszkanie o powierzchni 73 m², położone w spokojnej części Tychów, na osiedlu P, przy ul. Poziomkowej. Lokal jest po generalnym remoncie przeprowadzonym w 2019 roku – stan idealny, do natychmiastowego wprowadzenia. 

OPŁATY:

  • Czynsz - 1550,00 zł ( w tym zaliczka: na wodę 4 m3 oraz podgrzanie wody 4m3, zaliczka na C.O., fundusz remontowy, wywóz śmieci 2 os.)
  • prąd - 3 fazy 
  • brak gazu

UKŁAD MIESZKANIA:
  • przestronny salon z wyjściem na duży balkon,
  • dwie sypialnie,
  • nowoczesna, w pełni wyposażona kuchnia wraz ze sprzętem AGD,
  • łazienka,
  • WC,
  • przedpokój z miejscem na przechowywanie.
Niewątpliwym atutem mieszkania jest bardzo duży balkon, którego remont zostanie wykonany w 2026 roku jako prace towarzyszące przy termomodernizacji budynku, a także możliwość korzystania z ogrodzonego ogródka o powierzchni ok 37 m² za zgodą zarządcy Spółdzielnia mieszkaniowa Oskard.


STAN TECHNICZNY:
  • generalny remont wykonany w 2019 r.,
  • modernizacja instalacji, nowe podłogi, ściany, zabudowy,
  • starannie wykończone wnętrza, nowoczesna stylistyka,
  • mieszkanie zadbane – nie wymaga żadnych nakładów finansowych.
  • 2 pomieszczenia piwniczne

LOKALIZACJA I OKOLICA:

Osiedle P w Tychach to idealne miejsce dla osób ceniących spokój, bezpieczeństwo i świetną komunikację.

Dojazd
  • Centrum Tychów – ok. 7–10 minut samochodem,
  • Katowice – ok. 20–25 minut trasą DK86,
  • Bielsko-Biała – ok. 25–30 minut drogą S1.
W pobliżu znajdują się również przystanki autobusowe, co zapewnia wygodny dojazd komunikacją miejską.

USŁUGI I SKLEPY:
  • sklepy osiedlowe
  • piekarnia
  • Żabka
  • apteki,
  • przychodnia,
  • punkty usługowe,
  • szkoły i przedszkola – wszystko w zasięgu kilku minut spaceru.

DLACZEGO WARTO:
  • mieszkanie po generalnym remoncie – gotowe do zamieszkania,
  • duży metraż i funkcjonalny układ,
  • dostęp do ogródka 37 m²,
  • świetna lokalizacja – szybki dojazd do Katowic i Bielska,
  • spokojne, zielone osiedle,
  • atrakcyjna cena za standard i przestrzeń.


To oferta dla osób, które szukają nieruchomości bez kompromisów: po remoncie, dopracowanej, ustawnej i gotowej do zamieszkania od zaraz.


Zapraszam do kontaktu w celu umówienia terminu prezentacji:
Anna Faruga
tel. 604-807-100


e-mail: anna.faruga@domos-nieruchomosci.pl
www.domos-nieruchomosci.pl


> Jeśli zakup mieszkania uzależniony jest od sprzedaży innej nieruchomości - zapraszamy do współpracy, pomożemy Państwu w bezpieczny sposób przeprowadzić obie transakcje. 

Naszym klientom zapewniamy bezpłatną pomoc w uzyskaniu kredytu na zakup nieruchomości oraz kompleksową obsługę w procesie sprzedaży. 


*Opis oferty zawarty na stronie internetowej sporządzany jest na podstawie oględzin nieruchomości oraz informacji uzyskanych od właściciela, może podlegać aktualizacji i nie stanowi oferty określonej w art. 66 i następnych K.C.
Okolica jest zielona i sprzyja rekreacji – w pobliżu tereny spacerowe, place zabaw, ścieżki rowerowe.

Kalkulatory

Kalkulator kredytowy

Wysokość raty

PLN
%

Kalkulator kosztów

Podatek od czynności cywilno-prawnych

Taksa notarialna
(opłata notarialna)

Wniosek o wpis do WKW

VAT od prowizji
agencji nieruchomości

Vat od taksy notarialnej
(opłaty notarialnej)

Prowizja agencji nieruchomości

Wypisy aktu notarialnego

Razem

Uwaga: mogą wystąpić dodatkowe opłaty za założenie księgi wieczystej oraz ustanowienie hipoteki.

PLN
PLN
PLN
PLN
PLN
PLN
%
PLN

Pośrednik

Proszę wprowadzić poprawne imię i nazwisko
Proszę wprowadzić poprawny numer telefonu
Proszę wprowadzić poprawny adres e-mail
Proszę zaznaczyć wymagane zgody
Rozwiąż równanie:
21 8
Niepoprawny wynik